Vägen till ett nytt hus eller en tillbyggnad börjar med ett godkänt bygglov. För din bygglovsansökan behöver du samla ihop en rad olika bygglovshandlingar som visar vilken konstruktion du vill uppföra. Med kompletta och korrekta bygglovsritningar säkerställer du en enkel bygglovsprocess utan krav på komplement som försenar din ansökan.
Den här artikeln ska vi kika närmare på vilka dokument bygglovshandlingar omfattar och varför de är en viktig del av din bygglovsansökan.
Innehåll
Vad är bygglovshandlingar?
Bygglovshandlingar är ett samlingsord för en lång rad olika ritningar och dokument du behöver för att skicka in en komplett bygglovsansökan. Många kallar det även för bygglovsritningar, men utöver ritningar kan du även behöva inkludera information såsom energiberäkningar och ventilationsplan samt tekniska beskrivningar beroende på vilken sorts byggnad du vill konstruera. Handlingar är därför en bättre benämning.
De ritningar som inkluderas i handlingarna är fackmannamässigt utförda arkitektritningar som tydligt och detaljerat visar byggnadens tilltänkta konstruktion ur olika vinklar. Kontakta gärna byggnadsnämnden i just din kommun innan du börjar samla ihop alla handlingar. Reglerna för vad som krävs kan nämligen skilja sig åt beroende på vad och var du ska bygga.
Det är ingen stor kostnad att ta fram ritningar till din bygglovsansökan. Däremot kan det kosta både tid och pengar att skicka in felaktiga ritningar om kommunen skulle begära revideringar eller komplement. En bygglovsansökan är ofta en utdragen process som tar många veckor i anspråk, så med rätt ritningar blir den så effektiv som möjligt. Om du inte har rätt kunskap och erfarenhet är det därför alltid klokast att anlita en expert.
Behöver du hjälp med bygglovet?
Få expertrådgivning genom hela processen. Kontakta oss idag för att förenkla vägen framåt!
Vilka handlingar ingår i en bygglovsansökan?
Att skapa en enkel planritning är inte komplicerat. Men att tolka kommunens regler, skapa fackmannamässigt utförda ritningar och få dem att stämma överens med varandra kan ta en hel del tid i anspråk. Det är nämligen många bygglovshandlingar som ska skickas in.
- Situationsplan – En situationsplan visar fastighetens utformning och var byggnaden ska vara placerad på tomten. Här finns bland annat information om byggnadens avstånd till tomtgränsen och andra byggnader på tomten.
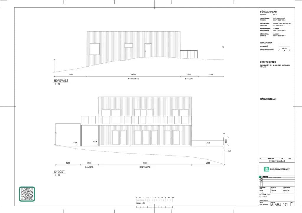
- Fasadritning – Fasadritningen visar hur byggnadens utsida ska se ut från alla sidor. Ritningen ger en bra bild av byggnadens utseende och kommunen kan enkelt avgöra om den kommer att passa in i omgivningen. Ritningen ska bland annat inkludera information om färger, materialval och takvinklar.
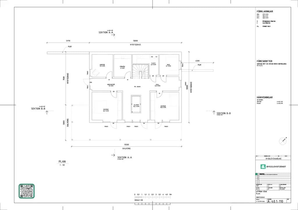
- Planritning – Planritningen busar byggnadens layout ovanifrån och ger en detaljerad bild av planlösningen för alla våningsplan i huset. Ritningen visar placeringen av rum, väggar, dörrar och fönster. Dessutom innehåller ritningen mått och utrymmen och är viktig för att säkerställa att huset uppfyller såväl byggstandarder som säkerhetskrav. Inkluderar bland annat information om byggarea, boarea och höjdmått.
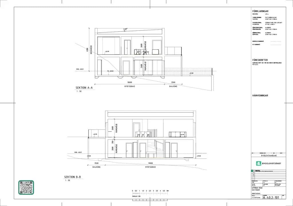
- Sektionsritning – En sektionsritning visar en genomskärning av byggnaden från golv till tak. Den ger en bra insikt i hur väggar och våningsplan är placerade, samt husets olika höjder både inomhus och utomhus. Här kan du se husets inre konstruktion och allt från isolering till materialval. Visar bland annat bygghöjd, rumshöjd, nockhöjd och takvinkel.
- Konstruktionsritning – Om du ska ta dig an ett större eller mer komplext projekt kan du behöva skicka in en konstruktionsritning. Denna ritning visar detaljer om byggnadens bärande konstruktion såsom stommen.
Beroende på vilken sorts byggnad du ska uppföra och dess storlek kan du även behöva skicka in handlingar med information om:
- Energiberäkning
- Ventilationsplan
- Material
- Tekniska lösningar
- Byggmetoder
- Brand- och ljudklassning

Vad ska bygglovshandlingar innehålla?
Det är viktigt att alla bygglovshandlingar innehåller korrekt information. Det finns vissa standarder som ska vara uppfyllda för att dem ska anses vara fackmannamässigt utförda. Du kan skapa dina ritningar på egen hand, men genom att anlita en sakkunnig säkerställer du att de blir rätt.
Alla bygglovshandlingar ska innehålla följande information:
- Angiven skala (till exempel 1:50 eller 1:100)
- Skalstock för att kontrollera alla mått
- Mått i millimeter som anger bredd, höjd och längd
- Svarta linjer mot vit bakgrund
- Fastighetsbeteckning, datum och namn på den som skapat ritningen
När du har samlat in alla dina bygglovshandlingar skickar du in dem till kommunen för granskning. Handläggningstiden för ett bygglov är cirka tio veckor om ansökan är komplett. Se därför till att skicka in korrekta ritningar för att undvika att kommunen ber om komplement eftersom det tar ännu mer tid i anspråk.

Då behöver du ta fram bygglovshandlingar
Om du ska bygga ett nytt hus, skapa en tillbyggnad eller göra stora ändringar i konstruktionen måste du ta fram bygglovshandlingar. Dessa skickas in till kommunen för ett godkännande. Först när du har fått ett godkänt bygglov och ett startbesked får du sätta spaden i marken och påbörja konstruktionen.
Tillfällen då du behöver bygglovshandlingar:
- Nybyggnation av bostäder
- Tillbyggnad av befintlig byggnad
- Ändring av fasad eller tak
- Stora förändringar av fönster och dörrar
- Vissa ändringar inomhus
- Nyttjandeändring av en byggnad
Precis som det finns tillfällen då du behöver skicka in en ansökan om bygglov, så finns det även tillfällen då det inte krävs. Det gäller bland annat när du vill uppföra mindre komplementbyggnader.
Du får uppföra en friggebod enligt friggebodsreglerna utan att ansöka om bygglov. Du får även uppföra ett attefallshus enligt attefallshusreglerna utan att ansöka om bygglov, men däremot behöver du skicka in ritningar och få ett startbesked
Bygglovshandlingar med exempel
Det kan vara ett omfattande projekt att ta fram ritningar till ett bygglov, speciellt om du vill göra det på egen hand istället för att anlita en expert. Här nedan ser du olika bygglovshandlingar exempel som ger dig en översikt av vilka dokument som behövs.



Kan man begära ut bygglovshandlingar?
Om du är intresserad av bygglovshandlingarna för ett specifikt hus så kan du begära ut dessa hos kommunen. Kanske vill du bygga ett snarlikt hus, få inspiration eller få ut handlingarna för det hus du bor i. Du behöver ingen speciellt orsak till att beställa ut handlingar för olika byggnader, utan alla är offentliga och tillgängliga för beställning. Du kan vara anonym när du beställer.
För att få tag i en specifik handling måste du kontakta kommunen. Oftast kostar det en mindre avgift att få en kopia på handlingarna och du betalar den i samband med beställningen.
Du kan använda bygglovshandlingarna som exempelritningar för ditt eget projekt. Till exempel om du vill visa dem för en arkitekt för att visa vad du vill ha för slags byggnad eller planlösning. Du kan dock inte använda exempel på bygglovshandlingar för andra hus i din bygglovsansökan, utan du behöver ritningar som är specifikt framtagna för ditt eget projekt.
Vad kostar bygglovshandlingar?
Priset för bygglovsritningar varierar beroende på typen och storleken på ditt projekt. Vi arbetar alltid med fasta priser så att du ska veta exakt vad våra tjänster kostar. Kontakta oss gärna för att få en gratis offert med våra konkurrenskraftiga priser baserat på just din önskade konstruktion.
Vi tar fram alla ritningar du behöver för din bygglovsansökan, inklusive fasadritning, sektionsritning, planritning och situationsplan. Vi på Bygglovstjänst är specialiserade på småhus och har all den kompetens och erfarenhet som krävs för att snabbt ta fram ritningar till ett lågt pris.
En enskild ritning för ett bostadshus på 150 kvm kostar runt 5 000 kr, medan en beställning som inkluderar alla bygglovshandlingar för samma hus kostar runt 25 000 kr.
Beställ ritningar för ditt bygglov
Den viktigaste delen av bygglovshandlingar är de bygglovsritningar som krävs för att få godkänt i din bygglovsansökan. Ritningarna ska vara hur ditt hus ska se ut och inkludera detaljerad information om allt från väggar, fönster och dörrar till mått och taklutning. Att ta fram ritningar för bygglov behöver inte vara svårt, men däremot kan det vara mycket tidskrävande om man inte har rätt kunskap och kompetens.
Det finns många exempel på bygglovsritningar att ta inspiration från. Det är även möjligt att begära ut bygglovshandlingar för hus som liknar det du vill bygga. För att få en så snabb och smidig bygglovsprocess som möjligt rekommenderar vi dig att anlita hjälp med dina handlingar.
Genom att anlita oss på Bygglovstjänst får du inte bara hjälp med dina ritningar, utan även en individanpassad service från erfarna arkitekter som förenklar bygglovsprocessen.
Vanliga frågor
Var hittar man bygglovshandlingar?
Alla bygglovshandlingar finns sparade hos kommunen. För att begära ut dem ska du vanligtvis vända dig till kommunens byggnadsnämnd eller stadsbyggnadskontor. Många kommuner har även en digital tjänst på sin hemsida där du kan söka efter eller beställa kopior och bygglovshandlingar.
Hur många ritar bygglovshandlingar själva?
Medan det är fullt möjligt att rita bygglovsritningar själv, speciellt i ett datorprogram, så väljer de flesta ändå att anlita en expert för detta. Arkitektprogram har nämligen en brant inlärningskurva och eftersom bygglovsritningar har strikta krav blir det oftast både billigare och effektivare att beställa professionella ritningar redan från början.
Är bygglovshandlingar offentliga?
Ja, bygglovshandlingar är offentliga handlingar i Sverige enligt offentlighetsprincipen, vilket innebär att du kan begära ut dem från kommunen. De kan tillhandahålla kopior mot en avgift och du får begära ut vilka handlingar du vill. Det kan vara mycket användbart om du vill se bygglovsritningar för liknande byggnader. Det är också användbart om du har köpt ett hus och vill ha kopior på de ursprungliga handlingarna.
Hur får jag ut bygglovshandlingar i Göteborg, Stockholm och andra städer?
För att beställa bygglovshandlingar i Göteborg, Stockholm eller andra städer behöver du bara kontakta den kommun det gäller. Där får du information om vem du bör kontakta för att begära ut handlingarna.



Fyll i formuläret för offertförfrågan!
Vi återkommer snart och erbjuder alltid gratis offerter och platsbesök!
Bygglov för växthus – Allt du behöver veta innan du ansöker
Att bygga ett växthus är en dröm för många trädgårdsentusiaster. Det förlänger odlingssäsongen, skyddar känsliga [...]
maj
Konstruktionsritningar exempel: Effektiva idéer för ditt projekt
Konstruktionsritningar är en viktig del av alla byggprojekt och fungerar som en detaljerad manual för [...]
apr
Sektionsritning Exempel: Din Guide till Bygglov och Korrekt Ritning
Sektionsritning exempel är en viktig del av arkitektonisk och teknisk dokumentation och sektionsritning exempel är [...]
nov
Bygglov för altan eller terrass: Din kompletta guide till bygglovsprocessen 2026
Att bygga en altan är ett populärt sätt att skapa en trivsam och funktionell utomhusmiljö [...]
jul
Situationsplan för bygglov: 5 tips för en smidig process
När en byggnad ska byggas är det nödvändigt att upprätta en situationsplan för bygglov. Då [...]
maj
Planritning förkortningar, symboler och skala
Är du på gång att inleda ett byggprojekt? Då måste du ha koll på planritning [...]
jun
Vad är bäst – Att rita bygglovsritningar program eller anlita hjälp?
När du står inför att skapa bygglovsritningar för ditt byggprojekt finns det två huvudalternativ: att [...]
jul
Nya regler för bygglov förenklar för husägare
Den 1 december 2025 genomfördes en av de mest betydande reformerna i Plan- och bygglagen [...]
mar
Bygglov staket – Regler för staket, plank och murar
Vill du bygga en skyddad uteplats med ett staket, ett plank eller en mur runt [...]
dec