Bygglovsritningar är tekniska ritningar från ditt kommande byggprojekt ur olika perspektiv. De är en obligatorisk del av din bygglovsansökan och ska visa allt från planlösningen i genomskärning till fasadens utseende. För att du enklare ska få en förståelse för de ritningar som behövs, har vi tagit fram bygglovsritningar exempel att kika på.
Därefter kan du själv bestämma om du har den kompetens och kunskap som krävs för att själv skissa upp ritningarna. Om du saknar rätt kunskap är det enklast att anlita en professionell bygglovsritare som ser till att alla dokument är skalenliga och detaljerade. Att söka bygglov kan nämligen vara tufft, så det kan vara en klok idé att be om hjälp.
Innehåll
Vad är bygglovsritningar?
Bygglovsritningar visar hur du har tänkt konstruera din nybyggnad eller tillbyggnad. Ritningarna visar byggnaden ur olika perspektiv, bland annat ovanifrån och från sidan. De används av bygglovshandläggaren för att säkerställa att konstruktionen följer byggnadsregler och andra lokala bestämmelser.

Det finns olika sorters ritningar som kan behöva inkluderas i en bygglovsansökan:
- Situationsplan – Ritning ovanifrån i skala 1:200 eller 1:400
- Planritning – Ritning i genomskärning ovanifrån i skala 1:200
- Fasadritning – Ritning utifrån för byggnadens fasader i skala 1:100
- Sektionsritning – Ritning i genomskärning från sidan i skala 1:100.
- Detaljritning – Närbild av en viss detalj i skala 1:10 eller 1:20
För att få reda på vilka ritningar just din kommun kräver kan det vara klokt att ta kontakt med bygglovsenheten för att få mer information. I enstaka fall kan det nämligen även krävas ritningar för konstruktion, el och VVS. Kika därefter längre ner i vår artikel för att se olika bygglovsritningar exempel.
💡 Läs mer om det här: Vad är bygglovsritningar?
Bygglovsritning för nybygge
När du ska uppföra ett nybygge på tomten är bygglovsritningar extra viktiga eftersom de hjälper till att visa hur den nya byggnaden kommer att se ut och vilka funktioner den kommer att ha.
Bygglovshandläggaren lägger stort fokus på ritningar för att skapa sig en uppfattning om konstruktionen. Dessa ritningar inkluderar alla ovan nämnda varianter och är ofta mer detaljerade för att täcka alla aspekter av det nya byggprojektet.
Bygglovsritningar för tillbyggnad
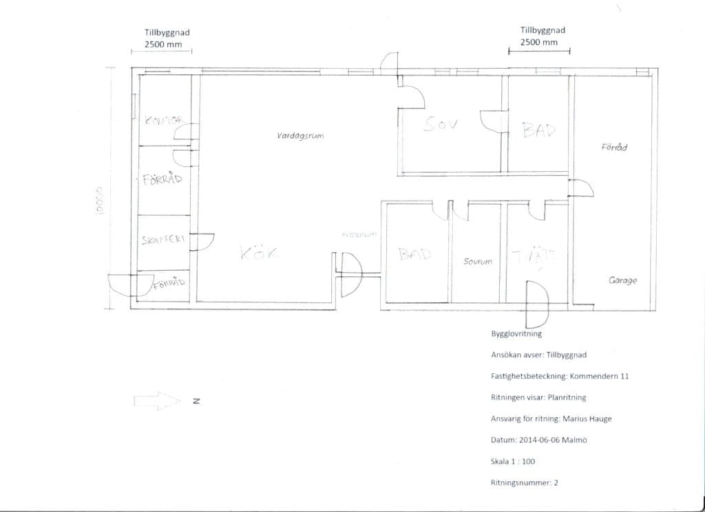
För tillbyggnader behövs också bygglovsritningar för att visa hur den nya delen av byggnaden kommer att integreras med den befintliga strukturen. Ritningarna bör inkludera både den nuvarande byggnaden och den planerade tillbyggnaden för att tydligt visa förändringarna.
Om du är osäker på hur du vill utforma din tillbyggnad kan du kika efter exempel på bygglovsritningar eller exempel på planritning för bygglov för att få inspiration.
Behöver du hjälp med bygglovet?
Få expertrådgivning genom hela processen. Kontakta oss idag för att förenkla vägen framåt!
Vad måste inkluderas i bygglovsritningar exempel?
När man tar fram exempel på bygglovsritningar är det viktigt att ha kunskap om vad de ska innehålla. Detsamma gäller om du väljer att anlita en professionell bygglovsritare. Då är det nämligen enklare att dubbelkolla att allt ser rätt ut.
Till att börja med måste alla ritningar vara kompletta, fackmannamässigt utförda och i rätt skala. Därefter finns det några saker som varje enskild ritning måste innehålla för att anses vara tydlig och välgjord.
Bygglovsritningar exempel ska innehålla:
- Information om vad ritningen visar
- Skala
- Skallinjal eller skalstock
- Exakta mått och proportioner
- Tydliga markeringar för byggnadens alla delar
- Fastighetsbeteckning
- Ritningsnummer
- Datum (för att skilja olika versioner från varandra)
- Information om vem som har upprättat ritningen
Det är viktigt att alla skalor är korrekta. Om en ritning har skalan 1:100 så blir 6 meter i verkligheten 6 centimeter på ritningen. Ritningarna får inte ritas i perspektiv.
💡 Tips: Planritningsprogram online gratis: Fånga upp nya trender
Bygglovsritningar exempel
Bygglovsritningar består av flera olika ritningar som tillsammans ger en fullständig bild av ditt kommande byggprojekt. Dessa hjälper bygglovshandläggaren att skapa sig en bra översikt av projektet.
För att få en förståelse för vilka ritningar du behöver bifoga i din bygglovsansökan har vi samlat ihop några bygglovsritningar exempel här nedan. De ger dig en överblick över de skisser som måste tas fram.
Situationsplan
Visar byggnadens placering på tomten och dess förhållande till omgivande byggnader, vägar och andra strukturer. I exempel på bygglovsritningar här ovan ser du inte bara den tomt som ska bebyggas, utan även hur tillbyggnaden ligger i förhållande till grannarna i området samt komplementbyggnader.

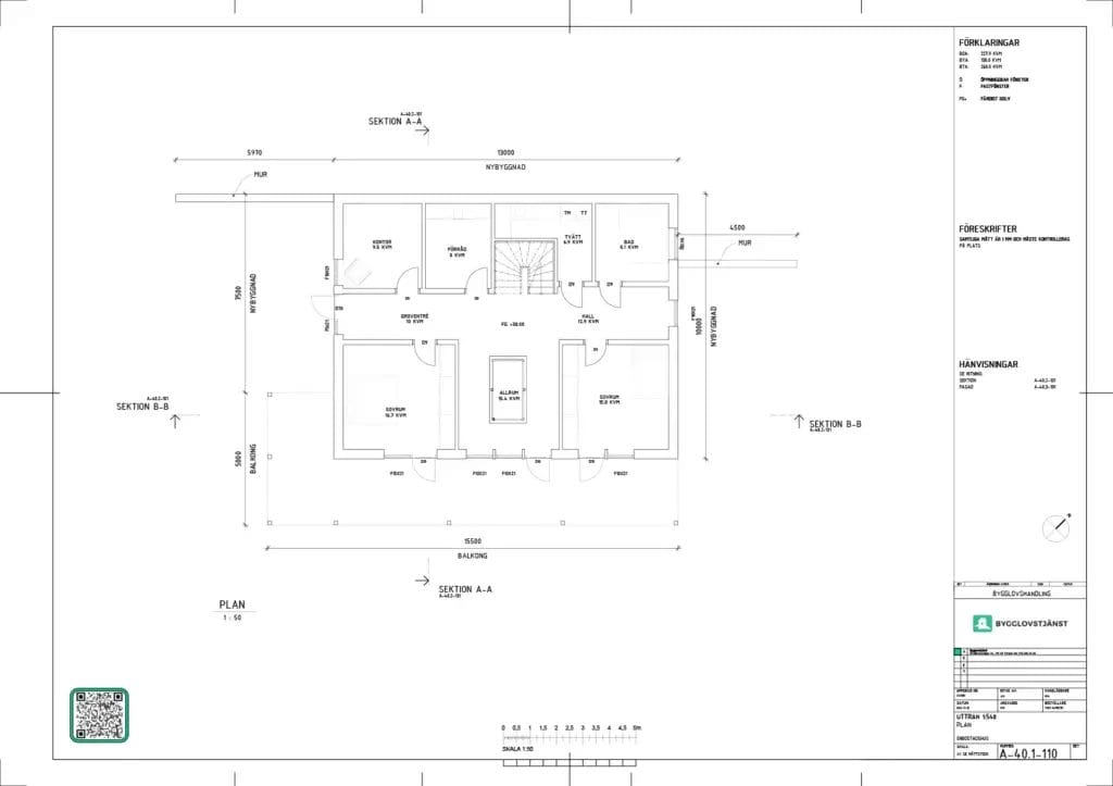
Planritning
Visar byggnadens planlösning från ovan, inklusive rum, väggar, dörrar och fönster. Denna ritning är viktig för att förstå byggnadens inre komposition och hur utrymmena är organiserade. Den innehåller detaljer som rummens funktioner, dimensioner och inredning, vilket hjälper till att visualisera hur byggnaden kommer att användas och hur människor kommer att röra sig i den.


Fasadritning
Visar byggnadens yttre utseende från alla sidor. Den hjälper bygglovshandläggaren att avgöra hur byggnadens estetiska utformning ser ut och passar såväl omgivningen som omgivande arkitektur. På detta bygglovsritningar exempel kan du bland annat se materialval för fasad, tak, dörrar och fönster.

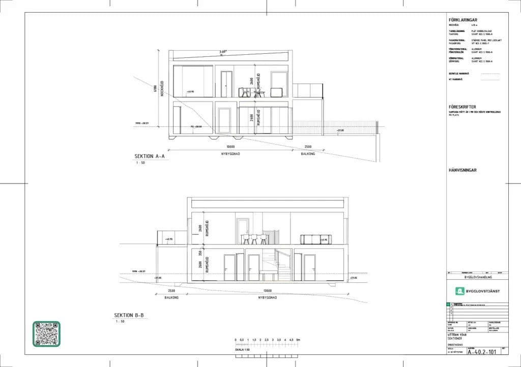
Sektionsritning
Visar en genomskärning av byggnaden, vilket ger en bild av den interna strukturen och byggnadens höjd. Med detta bygglov ritningar exempel kan du se byggnadens vertikala dimensioner och hur olika våningsplan och utrymmen är fördelade. På ritningen finner du detaljer för bland annat takhöjd, golvhöjd och trappor.


Vad kostar bygglovsritningar exempel?
Vad det kostar att ta fram bygglovsritningar för tillbyggnad eller nybyggen varierar beroende på projektets omfattning och komplexitet. Ju större projekt, desto mer avancerade ritningar och desto högre kostnad.
Professionella bygglovshandlingar kan kosta allt från några tusenlappar till tiotusentals kronor. Det är dock en väl värd investering eftersom du själv slipper lära dig ett ritprogram och testa dig fram. Med fackmannamässiga bygglovsritningar exempel blir din bygglovsansökan rätt redan från början och du slipper skicka in revideringar.
💡 Se även: Vi erbjuder ett fast bygglovsritningar pris
Bygglovsritningar är det viktigaste i din bygglovsansökan
Bygglovshandlingar är en väsentlig del av din bygglovsansökan. De utgör grunden till ett godkännande eller avslag, så det är viktigt att du skickar in fackmässiga skisser med rätt detaljer och information för att slippa en utdragen process.
Det finns flera typer av ritningar, inklusive situationsplan, planritning, fasadritning, sektionsritning och detaljritning. För att säkerställa att dina ritningar är korrekta och godkända kan du antingen skapa dem själv med hjälp av ritprogram eller anlita en proffsig bygglovsritare. Exakta och fackmannamässiga ritningar är en viktig investering för en framgångsrik bygglovsansökan.
💡 Läs även: Konstruktionsritningar tillbyggnad pris – En komplett guide
Bygglovstjänst kan hjälpa dig med
Nedan är ett urval av de tjänster som vi kan hjälpa er med:
Konstruktionsritningar
Energiberäkning
VVS-ritningar
Brandskyddsbeskrivning
Upptäck våra professionella tjänster inom bygglov och hantering av tillstånd. Vi kan assistera er med en mängd olika tillståndsprocesser för ert byggprojekt. För att få hjälp med detta, vänligen kontakta det expertteam som finns på Bygglovstjänst. Tveka inte att höra av er för mer information!



Fyll i formuläret för offertförfrågan!
Vi återkommer snart och erbjuder alltid gratis offerter och platsbesök!
Bygglovsprocessen steg för steg: Din guide till ett smidigt byggprojekt
Att förstå bygglovsprocessen är avgörande för att säkerställa att ditt byggprojekt går enligt plan – [...]
nov
Dimensioneringskontroll enligt EKS 12 – Din kompletta guide till säkra byggprojekt
Står du inför ett byggprojekt i Sverige? Oavsett om du är en privat husägare som [...]
nov
Bygglov för altan eller terrass: Din kompletta guide till bygglovsprocessen 2026
Att bygga en altan är ett populärt sätt att skapa en trivsam och funktionell utomhusmiljö [...]
jul
Svartbygge: Böter, Rivning & Bygglov i Efterhand
Lär dig allt om vad som gäller vid svartbygge i Sverige. Få information om böter, [...]
aug
Dränera hus kostnad – Vad kostar dränering 2026?
Att dränera huset är en stor kostnad, men också en viktig del av husets underhåll. [...]
dec
Få bygglov för förråd snabbt & enkelt – Allt du behöver veta
Funderar du på att bygga ett förråd men känner dig vilsen i djungeln av regler? [...]
maj
Krävs bygglov för garage? – Förstå reglerna och möjligheterna för din tomt
Om du vill skydda ditt fordon från väder och vind, då är det dags att [...]
jul
Nya regler för bygglov förenklar för husägare
Den 1 december 2025 genomfördes en av de mest betydande reformerna i Plan- och bygglagen [...]
mar
Vad kostar ett bygglov? Avgifter för bygglov & anmälan
Funderar du på att förverkliga ditt drömprojekt men är osäker på den oundvikliga frågan: vad kostar [...]
sep