Bygg hållbara affärsrelationer med vår expertis!

Bygglovshandlingar i Göteborg – Snabbt & Effektivt
Behöver du hjälp med bygglovshandlingar i Göteborg? Vi erbjuder kompletta och skräddarsydda lösningar för ditt byggprojekt. Våra erfarna experter guidar dig genom hela processen, från ansökan till godkännande. Kontakta oss idag för en kostnadsfri konsultation och få ditt bygglov på plats snabbt och effektivt!
Fackmannamässiga bygglovshandlingar
Erfarna bygglovskonsulter
Bygg rätt, vi guidar dig till bygglov
Hur går process för bygglov i Göteborg?

Offertförfrågan
Skicka in dina uppgifter via kontaktformuläret för att få en kostnadsfri offert inom 12h.

Projektstart!
Efter att du har godkänt offerten kontaktar vi dig för ett uppstartsmöte för att ta emot ytterligare underlag som kan behövas för att göra din idé till verklighet.

Ritningar skapas
Vi jobbar fram beställda ritningar åt dig inom 1-2 veckor och skickar ut dem till dig för granskning. Ritningarna revideras enligt dina önskemål tills du är nöjd.

Leverans!
Om du vill kan vi skicka in dina ritningar till kommunen och sköta kontakten med dem – så att du slipper. Efterfrågar kommunen kompletteringar så ordnar vi detta.

Hjälp med bygglovshandlingar i Göteborg
Få en kostnadsfri offert inom 12h. Vi hjälper dig med dina bygglovsritningar från detaljplan granskning till startbesked, alltid till ett fast pris.
Kundnöjdhet är viktigt för oss
Beställ ritningar för ditt bygglov i Göteborg
Kolla in våra färdiga ritningspaket. Vi kan även skräddarsy och anpassa ritningen så att de passar perfekt till dina behov och önskemål.
Vad är bygglovshandlingar?
Funderar du på att bygga om hemma och måste ansöka om bygglov? Då är det dags att samla ihop alla bygglovshandlingar du behöver! Bygglovshandlingar är en lång rad dokument som du behöver skicka in till Göteborgs stadsbyggnadsförvaltning. Exakt vilka handlingar du behöver skicka in kan variera beroende på vilket sorts projekt du vill ta dig an. Du kan till exempel behöva olika ritningar om du vill göra en omstrukturering av rummen på nedervåningen i bostadshuset jämfört med om du vill göra en helt ny tillbyggnad och samtidigt höja eller sänka marknivån.
Vanliga bygglovshandlingar i Göteborg är:
- Situationsplan
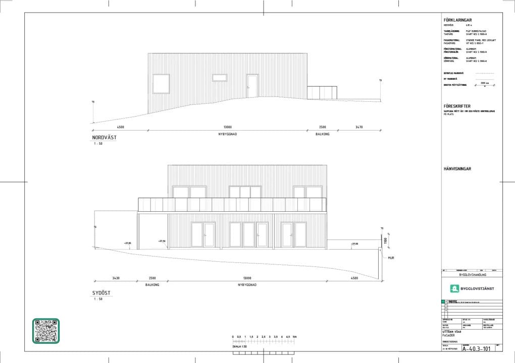
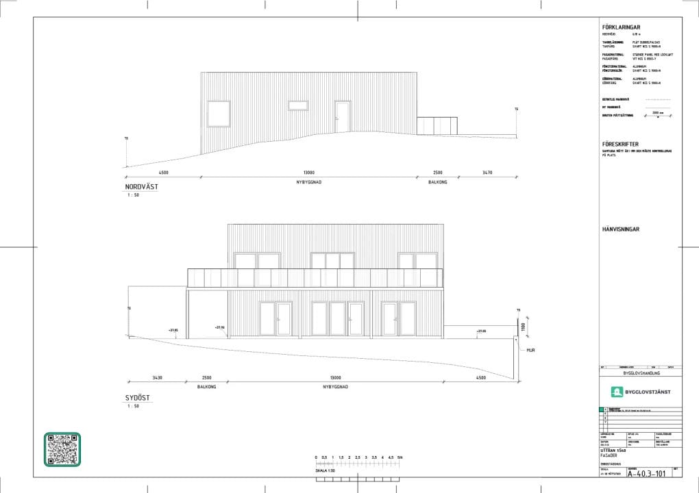
- Fasadritning
- Planritning
- Sektionsritning
- Markplaneringsritning
- Teknisk beskrivning
- Kontrollplan
Om du är osäker på vilken sorts ritningar du behöver till just ditt projekt kan du kontakta oss på Bygglovstjänst eller vända dig till Göteborgs stad för att be om råd. Det är nämligen av högsta vikt att du skickar in exakt de handlingar som krävs för att du ska få ett godkänt bygglov.
Få din offert nuKompletta bygglovshandlingar i Göteborg
När du skickar in dina kompletta bygglovshandlingar i Göteborg kommer stadsbyggnadskontoret att utse en ansvarig bygglovshandläggare som granskar din ansökan. De handlingar du behöver skicka in visar följande saker.
Situationsplan – En karta som visar var byggnaden ska placeras på tomten i förhållande till omgivande fastigheter, vägar och eventuella befintliga byggnader.
Fasadritning – En ritning som visar byggnadens fasad från olika vinklar för att bygglovshandläggaren ska få en uppfattning om estetik, färg och materialval samt byggnadens visuella påverkan.
Planritning – Ritningar över byggnadens våningsplan som visar rumsfördelning, fönster och dörrar samt exakta mått för att säkerställa att byggnaden följer regler kring exempelvis tillgänglighet.
Sektionsritning – En genomskärning av byggnaden som visar dess höjd, taklutning, våningshöjd och golvnivå i förhållande till marken.
Markplaneringsritning – En ritning som visar hur marken kring byggnaden ska anpassas, till exempel genom nivåskillnader, terrasser och gångar.
Begär en offertBygglov i Göteborg
Om du vill ansöka om bygglov i Göteborg så måste du vända dig till Göteborgs kontor för stadsbyggnadsförvaltning. Det är detta kontor som hanterar alla bygglovsansökningar, granskar dina ritningar och avgör om du har skickat in tillräckligt med information för att få ett godkänt bygglov eller inte.
Bygglovsprocessen tar i regel flera veckor, så skicka in dina bygglovshandlingar i Göteborg i god tid för att hinna få ett godkänt startbesked innan det datum du vill börja bygga. Genom att skicka in korrekta ritningar redan från början så behöver du inte oroa dig för att behöva skicka in kompletterande uppgifter, något som drar ut ännu längre på tiden.
Så här ser bygglovsprocessen ut:
- Beställ bygglovsritningar för ditt nya projekt
- Samla ihop dina bygglovshandlingar i Göteborg
- Skicka in handlingarna till stadsbyggnadsförvaltningen
- Invänta ett godkänt bygglov
- Invänta ett godkänt startbesked
- Du har tillstånd att börja bygga
Bygganmälan i Göteborg
Det är inte alltid du behöver skicka in dina bygglovshandlingar i Göteborg för att ansöka om ett bygglov. Ibland kan du istället behöva skicka in dessa handlingar för att göra en bygganmälan. En bygganmälan krävs bland annat när du vill uppföra ett attefallshus på din tomt enligt attefallsreglerna. I dessa fall krävs nämligen inget bygglov, men du måste alltid göra en bygganmälan till kommunen och invänta ett startbesked.
För att göra en bygganmälan krävs vanligtvis följande bygglovshandlingar i Göteborg: situationsplan, fasadritning, planritning, sektionsritning och kontrollplan. Det är alltså samma dokument som krävs vid en bygglovsansökan, men ansökningsprocessen är kortare.
Skillnaden är att en bygganmälan är en anmälan för mindre åtgärder som inte kräver bygglov, medan ett bygglov måste erhållas om du vill göra större ändringar där byggnadens yttre utseende påverkas.
Begär en offertBygglov för solceller i Göteborg
Generellt sätt behöver du inte skicka in bygglovshandlingar i Göteborg och starta en bygglovsprocess för att installera solceller. Det krävs nämligen inget bygglov för solceller om du installerar dem på taket av en byggnad så länge som installationen följer byggnadens utformning och bara ger en minimal påverkan av byggnadens exteriör.
I Göteborg får du installera en solenergianläggning med solceller, solpaneler och solfångare utan att ansöka om bygglov. Det finns dock vissa undantag, bland annat om dina fristående solceller ska ha ett utrymme på minst 1,7 meter undertill och därmed räknas som en byggnad. Du behöver aldrig ansöka om bygglov om du ska placera solceller utanför ett planlagt område.
Då kan du behöva ansöka om bygglov för solceller:
- Om solcellerna placeras högt ovanför marken
- Om solcellerna sticker ut mot byggnadens takfärg
- Om det finns regler gällande byte av färg, fasadbeklädnad och taktäckningsmaterial
- Om solcellerna inte följer byggnadens form
Vanliga frågor & svar
Hur lång handläggningstiden för bygglovshandlingar i Göteborg är beror bland annat på hur stort ditt projekt är och hur komplext ärendet är. Vanligtvis tar ett enklare bygglovsärende med korrekta bygglovshandlingar i Göteborg mellan 6 och 10 veckor att handlägga.
Hur mycket bygglovshandlingar i Göteborg kostar beror bland annat på hur komplext ditt projekt är och hur många ritningar du behöver. Du kan kontakta oss på Bygglovstjänst för att få en gratis offert för just ditt projekt.
Det är många dokument och ritningar som ingår i de bygglovshandlingar du måste skicka in för att ansöka om bygglov eller göra en bygganmälan. De vanligaste ritningarna du måste inkludera i din ansökan är situationsplan, sektionsritning, fasadritning och planritning. Kontakta oss för att få hjälp med de ritningar du behöver.
Om du vill hitta bygglovshandlingar för det hus du bor i eller en grannes hus så kan du kontakta Göteborg stad. Dessa dokument är nämligen allmänna handlingar. Stadsbyggnadsförvaltningens kontor har en kundservice som hjälper dig att begära ut rätt handlingar.
Hitta bygglovshandlingar i Göteborg
Bygglovshandlingar i Göteborg är allmänna handlingar och du kan därför begära ut vilka dokument du vill. Allt du behöver göra är att kontakta stadsbyggnadsförvaltningens kundservice som sedan hjälper dig att få fram rätt dokument. Du kan kontakta kundservicen via e-mejl, telefon eller deras e-tjänst. Dessutom finns det ett kontor som du kan svänga förbi för att få personlig hjälp.
Du kan bland annat begära ut bygglovshandlingar för ditt eget hus eller något annat hus i staden som har väckt ditt intresse. Göteborgskontoret har bland annat handlingar som har skickats in i samband med bygglovsansökningar.
Beställ bygglovshandlingar Göteborg
Stadsbyggnadsförvaltningens kontor har koll på alla bygglovshandlingar i Göteborg. Du kan när som helst vända dig till kontoret för att beställa bygglovshandlingar för att granska dessa i lugn och ro hemma. Alla handlingar är allmänna dokument.
Kort om att beställa bygglovshandlingar:
- Du måste ha fastighetsbeteckningen och/eller gatuadressen till fastigheten
- Du kan vara anonym
- Beställningen är vanligtvis kostnadsfri
- Vid större beställningar kan en avgift tas ut
Du kan bland annat begära ut planritningar, fasadritningar och sektionsritningar. Det går även att begära ut tillsynsärenden som handlar om anmälan, bedömning och protokoll.
Bygganmälan för uterum i Göteborg
Om du vill bygga ett uterum så behöver du i regel ansöka om bygglov. Det beror på att ett uterum räknas som en permanent byggnad både om det byggs ihop med bostadshuset och om det är fristående.
Om uterummet inte är permanent utan kan tas ned utan större ingrepp så kan det i vissa fall räcka med en bygganmälan. Det är dock en något mer ovanlig variant av uterum och i de flesta fall krävs ett bygglov.
Då behöver du bygglov för ett uterum i Göteborg:
- Om uterummet är större än 15 kvm (räknas som en tillbyggnad)
Du behöver inte ansöka om bygglov om ditt planerade uterum är mindre än 15 kvm. Det beror på att ett så litet uterum räknas som en attefallsåtgärd. Däremot behöver du skicka in bygglovshandlingar i Göteborg och invänta ett startbesked.
Bygglov för altan i Göteborg
Du behöver ansöka om ett bygglov för altan om du vill att den ska ha en yta på över 15 kvm. Oavsett om altanen är inglasad eller ej så räknas en yta över 15 kvm som en tillbyggnad och då krävs ett bygglov. Du behöver då samla ihop alla de ritningar och bygglovshandlingar som krävs och skicka in en bygglovsansökan.
Då behöver du inte ansöka om bygglov för en altan:
- Om altanen är mindre än 15 kvm
- Om altanen följer attefallsreglerna
- Om altanen följer friggebodsreglerna
Om du behöver hjälp med att ta fram bygglovshandlingar så kan du kontakta oss på Bygglovstjänst. Våra erfarna experter tar fram fackmannamässigt utförda ritningar som du kan inkludera i din bygglovsansökan.




























































