Bygg hållbara affärsrelationer med vår expertis!

Bygglovshandlingar i Stockholm – Snabbt & Effektivt
Behöver du hjälp med bygglovshandlingar i Stockholm? Vi erbjuder kompletta och skräddarsydda lösningar för ditt byggprojekt. Våra erfarna experter guidar dig genom hela processen, från ansökan till godkännande. Kontakta oss idag för en kostnadsfri konsultation och få ditt bygglov på plats snabbt och effektivt!
Fackmannamässiga bygglovshandlingar
Erfarna bygglovskonsulter
Bygg rätt, vi guidar dig till bygglov
Hur går bygglovsprocessen till?

Offertförfrågan
Skicka in dina uppgifter via kontaktformuläret för att få en kostnadsfri offert inom 12h.

Projektstart!
Efter att du har godkänt offerten kontaktar vi dig för ett uppstartsmöte för att ta emot ytterligare underlag som kan behövas för att göra din idé till verklighet.

Ritningar skapas
Vi jobbar fram beställda ritningar åt dig inom 1-2 veckor och skickar ut dem till dig för granskning. Ritningarna revideras enligt dina önskemål tills du är nöjd.

Leverans!
Om du vill kan vi skicka in dina ritningar till kommunen och sköta kontakten med dem – så att du slipper. Efterfrågar kommunen kompletteringar så ordnar vi detta.

Hjälp med bygglovshandlingar i Stockholm
Få en kostnadsfri offert inom 12h. Vi hjälper dig med dina bygglovsritningar från detaljplan granskning till startbesked, alltid till ett fast pris.
Kundnöjdhet är viktigt för oss
Beställ ritningar för ditt bygglov
Kolla in våra färdiga ritningspaket. Vi kan även skräddarsy och anpassa ritningen så att de passar perfekt till dina behov och önskemål.
Bygglov i Stockholm
Om du vill bygga ett nytt hus eller göra en större tillbyggnad så behöver du ansöka om bygglov. Om du bor i Stockholm så skickar du in din bygglovsansökan till stadens stadsbyggnadskontor. Det är denna avdelning som hanterar allt från detaljplaner och bygglov till stadsmätning och bostadsanpassning. Här arbetar även de bygglovshandläggare som hanterar dina bygglovshandlingar i Stockholm.
För att ansöka om ett bygglov behöver du ta fram ritningar som visar hur byggprojektet ska se ut och genomföras. Dessutom behöver du samla ihop alla handlingar som krävs i en bygglovsansökan. Vi på Bygglovstjänst hjälper dig att ta fram fackmannamässigt utförda ritningar. Våra experter finns alltid till hands, oavsett hur stort eller litet ditt projekt är.
Att ansöka om ett bygglov i Stockholm är en relativ enkel process. Stockholms stad har nämligen en mycket välutvecklad sajt och e-tjänst för dig som behöver information om hur processen går till och vilka handlingar som behövs. I kommunens e-tjänst kan du följa din bygglovsansökan, ta del av de handlingar som finns och även se beslut. Det är även här du skickar in din ansökan.
Få ditt bygglov nuBygglovshandlingar i Stockholm
För att kunna skicka in din bygglovsansökan till Stockholms stad och påbörja bygglovsprocessen måste du ta fram alla de bygglovshandlingar som behövs. Exakt vilka handlingar som krävs beror på vilket projekt du ska åta dig. Kanske vill du ändra planlösningen inomhus eller slå på stort och göra en tillbyggnad och höja marknivån. Om du är osäker på vilka handlingar som behövs kan du kontakta oss på Bygglovstjänst eller Stockholms stadsbyggnadskontors för råd.
Vanliga bygglovshandlingar i Stockholm är:
- Situationsplan – Karta som visar tomten ovanifrån. Här ser du var alla byggnader är placerade i förhållande till varandra och tomtgränsen.
- Fasadritning – Ritning som visar fastighetens fasad från olika vinklar. Inkluderar information om materialval, färg och estetik i jämförelse med omgivningen.
- Planritning – Ritning som visar en genomskärning av byggnadens våningsplan ovanifrån. Här syns bland annat placeringen av rum, dörrar och fönster.
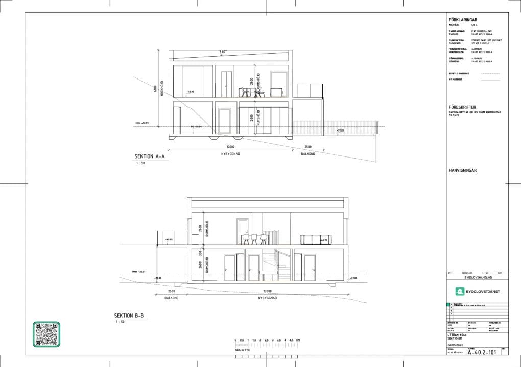
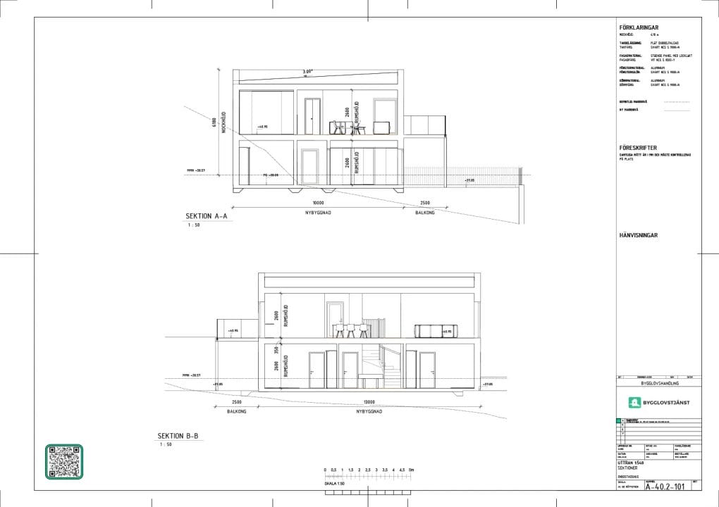
- Sektionsritning – Genomskärning av byggnaden som visar information som våningshöjd, taklutning och total höjd.
- Markplaneringsritning – Ritning som visar hur marken runt fastigheten ser ut. Inkluderar detaljer som nivåskillnader, terrasser och gångar.
- Teknisk beskrivning – Förklarar byggnadens tekniska aspekter såsom uppvärmning, ventilation och eventuell brandklassificering.
Kontrollplan – En plan för hur byggprojektet ska kontrolleras och besiktigas för att uppfylla kraven i bygglagen.
Begär en offertBygglovsritningar i Stockholm
Bygglovsritningar är en central del av alla bygglovshandlingar i Stockholm. Ritningarna är nämligen ett krav för att få tillstånd att bygga, renovera eller genomföra större förändringar i eller utanpå en fastighet. Utan fackmannamässigt utförda ritningar kan du inte få godkänt på din bygglovsansökan.
Det är viktigt att de bygglovsritningar du skickar in till stadsbyggnadskontoret är korrekt utformade. Ritningarna ska ge en tydlig bild av byggnadens utformning, placering och strukturella detaljer. Dessutom ska de vara enkla och tydliga att tolka, med enkla svarta linjer mot en vit bakgrund.
Stockholm omfattar bygglovsritningar vanligen flera specifika delar, inklusive planritningar, fasadritningar, sektionsritningar och situationsplaner. Exakt vilka ritningar du behöver skicka in kan variera beroende på ditt projekt. Alla ritningar har nämligen olika syfte och visar olika delar av byggnaden. I slutänden är det dock viktigt att de alla sammanstämmer och visar samma resultat men från olika vinklar.
Det är ofta en bra idé att anlita en arkitekt eller byggnadsingenjör för att säkerställa att ritningarna följer de tekniska krav och riktlinjer som Stockholm stad ställer. Om du skickar in undermåliga ritningar som saknar väsentlig information kommer du nämligen att behöva komplettera dem. Det kan bli både dyrare och mer långdraget än vad du först hade räknat med.
Få ditt bygglov nuExperter på Bygglovshandlingar
Att skicka in tydliga och korrekta bygglovsritningar kan snabba på handläggningsprocessen och minska risken för förseningar. Stockholms stad har tydliga regler för vad ritningarna måste innehålla, och korrekta handlingar är avgörande för en lyckad bygglovsansökan.
För att lyckas med dina bygglovshandlingar i Stockholm rekommenderar vid dig att ta hjälp av en expert. Vi på Bygglovstjänst har arbetat med att ta fram bygglovsritningar i många år. Genom att anlita oss får du anpassade ritningar för just din fastighet, och givetvis hjälper vi dig med eventuella ändringar och förbättringar. Vi hjälper dig med alla ritningar du behöver och sätter alltid dig som kund i fokus.
Vårt erbjudande:
- Anpassade ritningar: Vi gör ritningar som passar din tomt och dina önskemål.
- Praktisk design: Vi fokuserar på att göra huset funktionellt och användbart.
- Erfarenhet: Våra arkitekter och konstruktörer har kunskap och erfarenhet.
- Bygglovstjänst är din partner för ritningarna.
Bygganmälan i Stockholm
Om du ska ta dig an ett mindre projekt så kan det ofta räcka med att göra en bygganmälan istället för att starta en långdragen bygglovsprocess. En bygganmälan kräver i regel samma dokument, men processen är i regel snabbare och mindre omfattande.
Då kan du välja att skicka in en bygganmälan:
- Mindre och enklare projekt
- Projekt som inte påverkar byggnadens exteriör
- Installation av eldstad
- Bygge av attefallshus
- Bygge av attefallstillbyggnad
- Flytta kök eller badrum
När du har skickat in din bygganmälan i Stockholm så behöver du invänta ett godkänt startbesked innan du börjar bygga. Det är inte tillåtet att sätta spaden i marken (eller inomhus) innan du har fått godkänt på din bygganmälan.
Få ditt bygglov nuVanliga frågor & svar
Om du skickar in kompletta bygglovshandlingar i Stockholm så tar det vanligtvis tio veckor innan du får ett besked om ifall ditt bygglov blir godkänt eller inte. I Stockholm strävar Stadsbyggnadskontoret efter att hålla denna tidsgräns, men under perioder med hög arbetsbelastning kan handläggningstiden bli längre. Om du ansöker om bygglov för ett komplext projekt kan handläggningstiden vid behov förlängas med ytterligare tio veckor.
Priset för bygglovsritningar och bygglovshandlingar i Stockholm varierar beroende på hur stort och komplext ditt projekt är. Större ritningar kostar helt enkelt mer att framställa. Kontakta gärna oss på Bygglovstjänst för att få en gratis offert för just ditt byggprojekt.
Om du ska utföra ett större projekt kan du behöva ansöka om ett bygglov. Vi har koll på när en bygglovsansökan måste skickas in.
Ansök om bygglov om du vill göra följande saker:
- Bygga ett nytt bostadshus
- Göra en större tillbyggnad
- Ändra fasaden och till exempel byta färg eller dörrar
- Sätta upp en ny balkong på huset
- Installera takkupor
- Glasa in befintlig balkong
- Bygga ett skärmtak
Hur mycket en bygganmälan kostar i Stockholm beror på hur stort ditt projekt är. Större projekt har nämligen en större avgift. Det är stadsbyggnadsnämnden som beslutar om avgifterna och dessa varierar från år till år.
Om du vill ta del av bygglovshandlingar i Stockholm så kan du vända dig till kommunens e-tjänst. Där kan du logga in och beställa allt från fasadritningar och sektionsritningar till planritningar, tomtkartor och övriga handlingar i bygglovsärenden.
Stockholms stad accepterar följande filformat för dina bygglovshandlingar: DOC/DOCX, PPT/PPTX, XLS/XLSX, PDF, RTF, GIF, BMP, TIF, JPG/JPEG och PUB. Maximal storlek per fil är 5 MB. Det är viktigt att alla ritningar är fackmannamässigt utförda, skalenliga och måttsatta med enkla svarta linjer mot vit bakgrund.




























































