Garage Harald
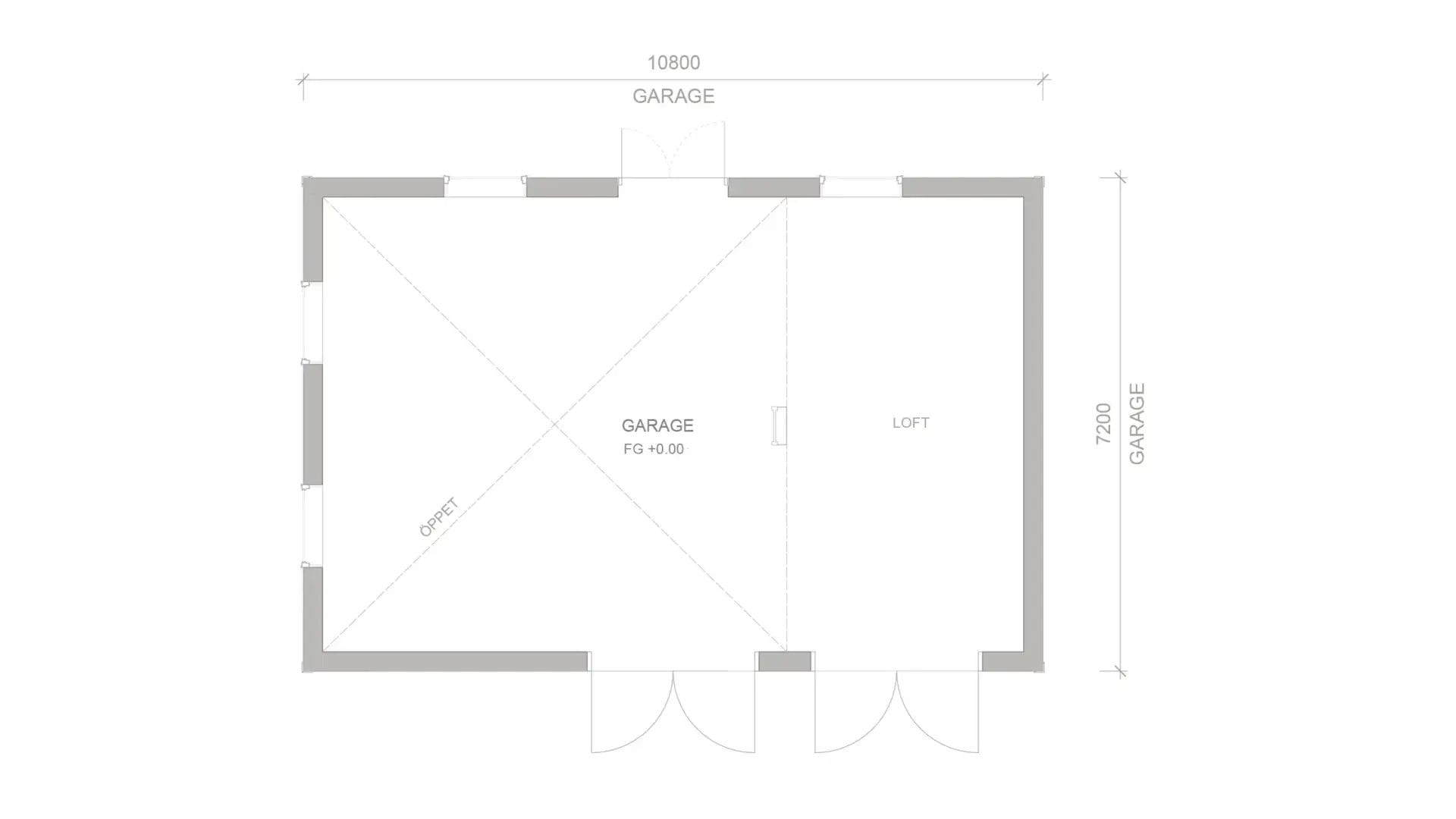
Garage Harald är en imponerande garagebyggnad med både stil och funktionalitet. Med sin generösa storlek och smarta loftutrymme erbjuder Garage Harald inte bara plats för dina fordon, utan också möjligheter till förvaring eller extra arbetsyta på loftet. Det är en perfekt lösning för den som söker ett multifunktionellt garage med utrymme för både bilar och hobbyverksamheter.Garagets robusta konstruktion och klassiska sadeltakdesign ger ett tilltalande utseende som passar i de flesta miljöer. Det stora utrymmet rymmer enkelt två bilar och lämnar plats för förvaring eller verktyg. Loftet kan användas som ytterligare förvaringsyta eller omvandlas till en arbetsplats, vilket gör Garage Harald till ett flexibelt utrymme för alla dina behov. Garage Harald kan anpassas med olika fasadmaterial och färger för att smälta in med befintliga byggnader och omgivningar. Denna mångsidiga konstruktion ger en elegant och praktisk lösning för både privatpersoner och företag som behöver extra utrymme.
















