Att bygga ett nytt hus eller genomföra en omfattande renovering är ett av de största och mest spännande projekten du kan ta dig an som privatperson. Men med stora projekt kommer också en oro för att göra misstag som kan leda till oförutsedda utgifter, förseningar eller rent av farliga brister. En av de absolut viktigaste pusselbitarna för att säkerställa att byggnaden blir säker, funktionell och framtidssäkrad är en korrekt utförd elritning.
Allt du behöver veta om elritning för ditt byggprojekt – från symboler och kostnader till lagkrav och vanliga misstag att undvika.
Innehåll
Vad är en elritning?
En elritning är en detaljerad teknisk ritning som visar precis hur och var all elektricitet ska dras och installeras i en byggnad. Oavsett om det handlar om nybyggnation, tillbyggnader eller renoveringar, är elritningen själen i ditt hems infrastruktur. Den fungerar som en oumbärlig karta för din elektriker och minskar risken för fel avsevärt.
Att arbeta med elektriska ritningar handlar om mycket mer än att bara bestämma var tv:n ska stå. Det handlar om att planera placeringen av eluttag, strömbrytare, lampor och ledningar på ett sätt som möter din familjs behov både idag och i framtiden. En korrekt elritning skapar en tydlig översikt som gör det lättare för alla inblandade att förstå exakt hur elsystem och andra elektriska komponenter ska anslutas.
Många förstagångsbyggare underskattar vikten av detta steg. Men faktum är att när du har korrekta ritningar och säkerställa att allt är noga uträknat från start, skyddar du dig mot de där obehagliga överraskningarna. Att slippa riva upp en nybyggd vägg för att man glömt kablar och ledningar är värt varenda krona i planering.
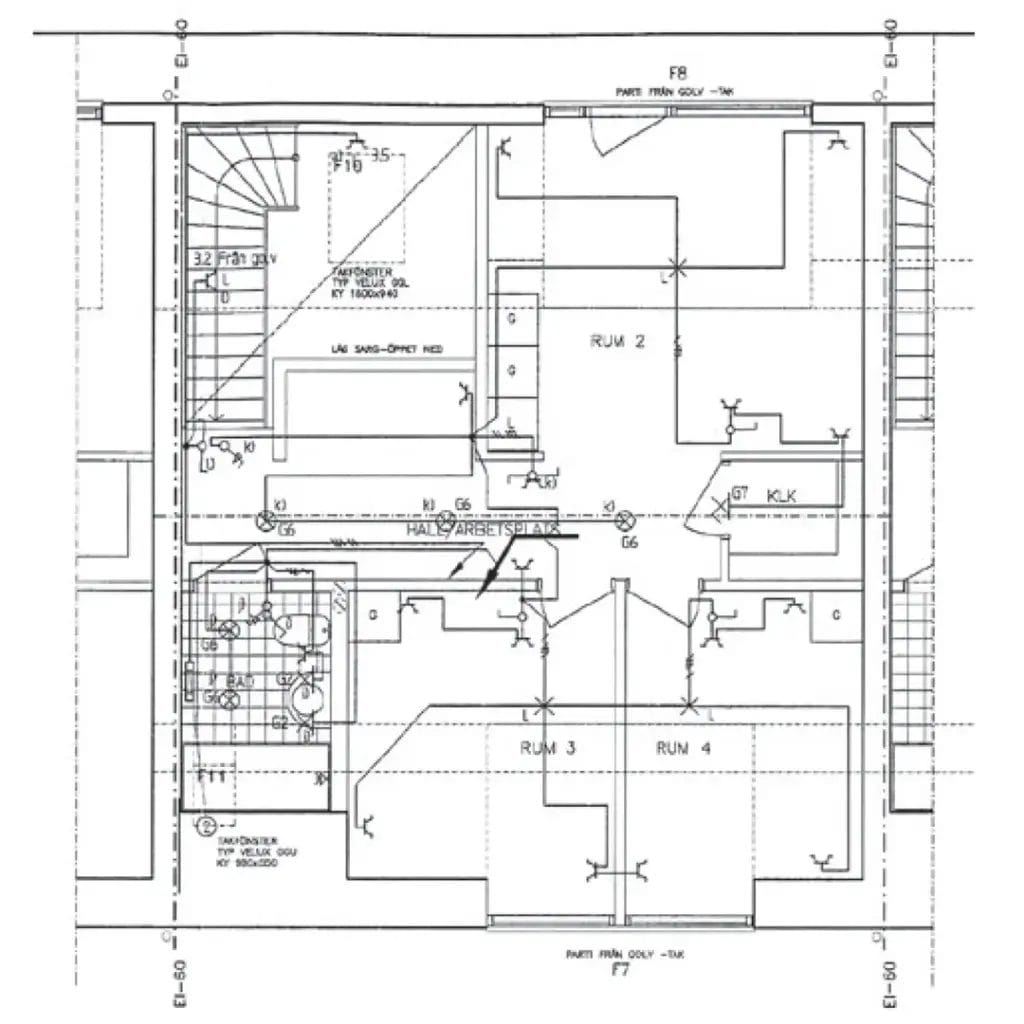
Så läser du ritningarna: Elritning symboler förklarade
Ett vanligt hinder för många husägare är att förstå fackspråket. Ritningarna är fyllda med krumelurer och linjer, men att lära sig grundläggande elritning symboler ger dig som beställare enorm makt och kontroll över byggprojektet.
En standardiserad ritning använder dessa ritningar för att kommunicera med elektrikern. Här är några av de vanligaste symbolerna du kommer att stöta på:
| Symbol | Betydelse |
|---|---|
![]() | Ledare |
![]() | Flera ledare, ett streck för varje ledare |
![]() | Vertikal ledare uppåtgående |
![]() | Vertikal ledare nedåtgående |
![]() | Ojordat uttag |
![]() | Jordat multipelt uttag (två) |
![]() | Jordat och petskyddat uttag |
![]() | Lamputtag |
![]() | Dimmer |
![]() | Enpolig strömställare |
![]() | Kronströmställare |
![]() | Trappomkopplare |
![]() | Dubbel trappomkopplare |
![]() | Korsomkopplare |
Genom att förstå en elritnings symboler kan du sitta ner i lugn och ro innan bygget startar och dubbelkolla att belysning, uttag, och apparater hamnar där du faktiskt vill ha dem. Det gör också att din kommunikation med hantverkarna blir mycket smidigare.
Behöver du en professionell elritning?
Låt våra erfarna specialister hjälpa dig genom processen – från första skiss till godkänd elritning. Vi säkerställer att din elritning villa uppfyller alla krav och håller högsta kvalitet.
Vad kostar en elritning?
Priset för att göra en elritning varierar beroende på projektets storlek och komplexitet. För en normalvilla på 120–200 kvm rör sig kostnaden vanligtvis mellan 3 000 och 10 000 kronor för en professionellt framtagen elritning. Det kan tyckas som en extra kostnad, men det är en investering som minskar risken för fel och onödiga kostnader längre fram i byggprocessen.
| Projekttyp | Ungefärlig kostnad | Tidsåtgång |
|---|---|---|
| Lägenhet / liten bostad | 2 000 – 4 500 kr | 1–3 arbetsdagar |
| Villa (120–200 kvm) | 4 500 – 9 000 kr | 3–7 arbetsdagar |
| Stor villa / nybyggnation | 8 000 – 15 000 kr | 7–14 arbetsdagar |
| Kommersiell fastighet | 15 000 kr+ | Projektberoende |
💰 Tips för bättre pris: Anlita en professionell elritningsspecialist tidigt i projektet. Det är rekommenderat att få in minst tre offerter och jämföra vad som ingår. En mer detaljerad och välgjord elritning kan faktiskt ge dig ett bättre pris från elektriker, eftersom de slipper tolka oklara underlag.
När behövs en elritning?
En elritning behövs i fler situationer än de flesta tror. Det handlar inte enbart om nybyggnation – de spelar en viktig roll vid renovering, ombyggnad och tillbyggnader av alla typer av byggnader.
1. Nybyggnation av villa eller hus
När du bygger ett nytt hus är en korrekt elritning ett grundkrav för att kunna ansöka om startbesked och för att elektriker ska kunna göra sitt jobb på rätt sätt.
2. Renovering och ombyggnad
Vid större renoveringar där du renoverar elinstallationer eller förändrar deras placering krävs uppdaterade elritningar baserat på befintliga installationer och de planerade förändringarna.
3. Tillbyggnader och utbyggnader
Tillbyggnader innebär nya utrymmen som måste anslutas till befintliga och planerade elsystem, vilket kräver en uppdaterad elritning.
4. Bygglovsansökan
El-ritningar under bygglovsprocessen krävs i många kommuner som en del av bygglovsprocessen. Felaktiga eller saknade ritningar kan leda till försenat startbesked och onödiga extra kostnader.
En elritning är avgörande för säkerheten och effektiviteten i alla elektriska installationer.
5. Fastighetsförsäljning
Korrekta ritningar och säkerställd dokumentation av elsystemet kan vara avgörande för köpare som vill veta att installationerna är lagliga och säkra.
💡 Se även: Vi hjälper även till med energiberäkningar, brandskyddsbeskrivningar och VVS-ritningar.
Vad innehåller elritningar?
En komplett ritning ger en detaljerad översikt av hela byggnadens elsystem. Ritningen kan skapas antingen utifrån ett nytt projekts planlösning eller baserat på befintliga installationer i en äldre fastighet.
- Placeringen av eluttag och brytare i samtliga rum
- Dragning av elledningar, kablar och ledningar i väggar, golv och tak
- Placeringen av lampor och armaturer inklusive typ av belysning
- Säkringsskåpets placering och fördelning av kretsar
- Jordfelsbrytare och överspänningsskydd
- Anslutning för vitvaror och andra elektriska apparater
- Ladduttag för elbil (allt vanligare i moderna elritning villa-projekt)
- Symboler och förklaringstexter för alla elektriska komponenter
- Hänvisning till gällande standarder och normer (t.ex. SS 4364000)

Skillnader mellan elritningar och andra ritningar
Det är vanligt att förväxla elritningar med andra tekniska ritningar som bygglovsritningar, VVS-ritningar eller konstruktionsritningar. Trots att de alla ingår i ett byggprojekts dokumentation är deras syfte och innehåll mycket olika.
| Ritningstyp | Vad visas | Används av |
|---|---|---|
| Elritning | Elsystem, ledningar, uttag, belysning | Elektriker, eltekniker, myndigheter |
| Bygglovsritning | Byggnadens yttre, fasad, plan | Byggnadsnämnden, arkitekt |
| VVS-ritning | Rör, vatten, ventilation | VVS-installatör, byggherre |
| Konstruktionsritning | Bärande delar, bjälklag, stomme | Konstruktör, byggentreprenör |
Elektriska ritningar är unika på det sätt att de måste följa strikta standarder för säkerhet och måste godkännas av ansvarig elinstallatör. En elritning används alltså inte bara under bygget – den är också en viktig del av den tekniska dokumentationen för fastigheten under hela dess livslängd.
Vanliga användningsområden
Elritningar används i en mängd olika typer av byggnader och projekt. Oavsett om det gäller ett litet fritidshus eller ett stort kontorskomplex är en korrekt och detaljerad elritning alltid ett krav för att säkerställa att byggnaden uppfyller gällande krav och standarder.
- Villor och småhus – elritning villa är det mest efterfrågade segmentet bland privatpersoner
- Flerbostadshus – kräver mer komplexa ritningar med separata kretsar per lägenhet
- Kommersiella fastigheter – kontor, butiker och industrilokaler med höga effektkrav
- Fritidshus och stugor – ofta enklare installationer men fortfarande lagkrav på dokumentation
- Ombyggnad och renovering – uppdatering av befintliga och planerade installationer
Bästa kvalitet hos elritningar
Vi skapar elritningar, enlinjescheman, ledningsdragningar och komplett projektdokumentation med precision. Optimerat för installation och besiktning – uppfyller branschkrav och standarder.
Vad kännetecknar högkvalitativa elritningar?
Högkvalitativa elritningar är korrekta, tydliga och kompletta. De minskar risken för fel vid installation, gör det lättare för andra hantverkare att samordna sitt arbete och säkerställer att byggnaden uppfyller alla tekniska och juridiska krav. El-ritningarna är korrekta när de är framtagna av en behörig elektriker eller eltekniker med djup kunskap om gällande regelverk.
Viktiga aspekter att tänka på
- Ritningen ska följa aktuella svenska standarder (SS 4364000, SS-EN 60617)
- Alla symboler ska vara korrekt använda och tydligt förklarade
- Skalförhållanden ska vara korrekta för att säkerställa korrekt och säker installation
- Ritningen ska uppdateras löpande om projektet förändras
- Detaljerade tekniska specifikationer ska bifogas för kritiska komponenter
Erfarenhet och expertis hos elritningsspecialister
Det är avgörande att anlita en professionell aktör med dokumenterad erfarenhet av elritningar. Välj en specialist som arbetar med alla typer av byggnader, har kunskap om bygglovsprocessen och kan fungera som rådgivare genom processen – från skiss till godkänd handling. En erfaren specialist hjälper dig inte bara att rita elritningen, utan också att undvika vanliga fallgropar som kan leda till fel och onödiga kostnader och förseningar.
⚠️ Undvik billiga genvägar: Att spara pengar på elritningen kan leda till felaktiga installationer, avslag på bygglovsansökan och i värsta fall brandrisker. Investera alltid i korrekta ritningar och säkerställa att de är framtagna av en behörig yrkesperson.
Att göra elritning: En steg-för-steg process
Många ställer sig frågan om de kan göra elritning själva. För en enklare renovering kan man ibland rita elritning på egen hand som en skiss för att visualisera sina idéer. Men när det kommer till nybyggnation eller större ombyggnad är det alltid rekommenderat att ta hjälp av en fackman för att få en mer detaljerad och korrekt handling.
1. Behovsanalys och skiss
Processen börjar med dig. Gå igenom rum för rum. Fundera på var sängen ska stå, var köksöns arbetsytor hamnar och var ni behöver uttag för nätverk eller TV. Skriv en lista på alla elektriska apparater som ska installeras. Detta ger en stark grund för nästa steg.
2. Konsultation med en professionell
För att få en korrekt och säker anläggning bör du anlita en professionell aktör. De tar dina idéer och omvandlar dem till detaljerade tekniska ritningar. De vet exakt hur elen ska fördelas över olika säkringar för att undvika överbelastning, och de säkerställer att alla aktuella branschregler följs.
3. Granskning av ritningen
När du får det första utkastet av elritningen, ta god tid på dig. Kolla placeringen av lampor och placeringen av eluttag noga. Är det tillräckligt många eluttag och brytare? Ritningar ger dig chansen att ändra på papper, vilket är gratis, jämfört med att ändra i väggarna, vilket innebär extra kostnader och onödiga kostnader.
4. Överlämning till elektriker
När ritningen är godkänd används den som arbetsunderlag. Eftersom el-ritningarna är korrekta, minskar risken för fel drastiskt. Det gör det lättare för din elektriker eller eltekniker att göra sitt jobb effektivt, vilket ofta leder till ett bättre pris på själva installationen.
Elritning för byggprojekt
Många tror att bygglovsritningar bara handlar om fasader och planlösningar. Även om en elritning sällan är ett strikt krav för själva bygglovsansökan hos kommunen i ett tidigt skede, är den en otroligt viktig del av det tekniska samrådet och för att få startbesked.
För att kommunen ska kunna säkerställa att byggnaden uppfyller samhällets krav på säkerheten och energieffektivitet, behöver de ofta se hur de tekniska installationerna är planerade. Under planering och genomförande är dina elektriska installationer kritiska. Att ha en färdig ritning som visar hur elsystemet är uppbyggt visar på seriositet och påskyndar ofta processen att få börja bygga.
Hur elritningar påverkar byggprocessen
En välgjord elritning är grundstenen i ett smidigt byggprojekt. Ritningarna ger alla inblandade parter – arkitekt, konstruktör, elektriker och byggledare – en gemensam referenspunkt. Det gör planering och genomförande mer effektivt och minskar risken för missförstånd och kostsamma omtag. Under bygglovsprocessen granskas el-ritningarna av kommunens handläggare och måste uppfylla alla formella krav för att ett startbesked ska kunna utfärdas.
Tips för att välja rätt elritning för ditt projekt
- Definiera dina behov tydligt innan du kontaktar en elritningsspecialist
- Begär referenser och exempel på tidigare utförda elritningar
- Kontrollera att specialisten är certifierad och behörig
- Diskutera möjligheten till framtida elutbyggnad, t.ex. för elbilsladdare eller solceller
- Säkerställ att ritningen kan levereras i det format som krävs av kommunen
Vanliga misstag att undvika
Ett av de vanligaste misstagen är att hoppa över elritningen och låta elektrikern “dra el på känn”. Det kan fungera kortsiktigt men skapar problem vid besiktning, försäljning eller framtida renovering. Andra vanliga fel är felaktiga symboler, bristfällig dokumentation av kablar och ledningar bakom väggar, och att inte uppdatera ritningarna när förändringar görs under byggprocessen.
- Felaktiga eller saknade ritningar kan leda till försenat startbesked och onödiga extra kostnader.
- En elritning kan också vara avgörande för säkerheten vid framtida försäljningar av fastigheter.
Varför du bör undvika att rita elritning helt på egen hand
Det finns en trend idag att vilja göra så mycket som möjligt själv för att spara pengar. Men att rita elritning själv, utan djupgående kunskap, är ofta en falsk ekonomi.
Om ritningarna är felaktiga kan det leda till katastrofala följder. Kablar och ledningar kanske inte dimensioneras rätt, uttag hamnar bakom dörrar som öppnas, eller ännu värre: elinstallationen blir farlig. Genom att anlita experter för att ta fram dina elritningar säkerställer du att elektrikern får ett dokument som följer svensk standard. Elektrikern använder dessa ritningar som lag. Om ritningen är otydlig, kommer installationen att bli därefter.
Dessutom underlättar en professionell elritning samarbetet med andra hantverkare, såsom snickare och rörmokare, så att de inte råkar borra där elen är dragen. En väl utförd planering leder till en smidigare resa genom processen.
Elritningar för villor – skräddarsy elen för ditt drömhem
När du ska bygga en ny villa ställs du inför hundratals val. En elritning villa skiljer sig från ritningar för andra typer av byggnader eftersom den måste vara intimt anpassad efter er specifika livsstil. Var kommer ni att ladda telefonerna? Var behövs det arbetsbelysning i köket? Behöver ni förbereda elledningar för en framtida elbilsladdare eller solpaneler?
När man bygger ett nytt hus har man den unika chansen att få allt exakt som man vill ha det. Då är ritningen kan skapas från ett blankt papper, men den bör alltid baseras på hur rummen är tänkta att möbleras. För dig som istället renoverar eller gör en ombyggnad måste planeringen ofta göras baserat på befintliga förutsättningar. Då är det extra viktigt att dokumentera både befintliga och planerade elinstallationer för att se till att systemet inte överbelastas.
Specifika krav och överväganden
En elritning villa har specifika krav som skiljer sig från kommersiella projekt. En villa ska ha tillräckligt med uttag per rum (minst ett uttag var tredje meter längs en vägg, enligt rådande normer), adekvat belysning i alla utrymmen och säker dragning av kablar och ledningar. Det är också viktigt att tänka framåt – planera för framtida behov av ladduttag för elbil, hemautomation och eventuell tillbyggnad.
Varför behövs en elritning för din villa?
Utan en korrekt elritning för din villa riskerar du att elen ska dras på ett sätt som varken är optimalt eller lagligtstämmigt. Elektriska ritningar säkerställer att varje rum får rätt antal uttag och lampor, att kablar dras på ett säkert sätt och att hela anläggningen uppfyller Elsäkerhetsverkets krav. Vid en framtida försäljning är det dessutom en stor trygghet för köpare att se att installationerna är dokumenterade och godkända.
Hur lång tid tar det att dra el i en villa?
Att dra el i en nybyggd villa på 150–200 kvm tar vanligtvis 3–6 veckor beroende på komplexiteten i elritningen och antalet installationer. En välplanerad elritning gör det smidigare för elektrikern och kan förkorta installationstiden märkbart. Förarbetet med en detaljerad ritning betalar sig alltså dubbelt – du sparar tid och minskar risken för kostsamma ändringar under resans gång.
Framtida trender inom elritning för villor
Digitaliseringen förändrar hur vi gör elritning. Moderna digitala ritverktyg gör det möjligt att skapa 3D-modeller av elsystem, simulera belastningar och integrera smarta hem-lösningar redan i ritningsstadiet. Efterfrågan på elritningar som inkluderar solcellsinstallationer, batterilager och smarta styrdon för energioptimering ökar kraftigt – och en framsynt elritning villa tar hänsyn till dessa framtida behov redan från start.
Ekonomi och kontroll: Därför sparar en professionell elritning pengar
Som beställare och husägare är det naturligt att vara riskavert och vilja ha en fast budget. Fel och onödiga förseningar är det man fruktar mest. Här är varför en investering i en bra elritning faktiskt sparar pengar:
- Färre ändringar på plats: Att be elektrikern flytta ett uttag när gipsväggarna redan är uppsatta är dyrt. En elritning minimerar dessa “ÄTA-arbeten” (Ändrings-, Tilläggs- och Avgående arbeten).
- Snabbare installation: När elektrikern har en exakt karta över hela byggnaden och vet exakt var lampor och andra elektriska enheter ska sitta, kan de arbeta betydligt snabbare.
- Tydligare offerter: När du skickar ut din elritning till olika elfirmor för att få in offerter, kan de ge dig ett mer exakt och ofta bättre pris eftersom de vet precis hur mycket material (lampor, uttag, kablar) och tid som krävs. Inga dolda överraskningar!
- Värdeökning vid försäljning: Framtida köpare uppskattar väldokumenterade hus. Att kunna visa upp professionella ritningarna över elsystemet ger trygghet och kan öka värdet på din fastighet.
Checklista: Tänk på detta när du planerar din elritning
För att du ska känna dig trygg och ha full kontroll, har vi tagit fram en praktisk checklista inför ditt möte med experterna som ska rita din elritning:
- Möblering: Ha en tydlig planlösning med inritade möbler. Var står sängen? (Uttag för mobilladdare). Var är matbordet? (Belysning centrerad ovanför).
- Köket: Kök kräver mycket el. Planera för mikrovågsugn, kaffebryggare, diskmaskin och eventuell vinkyl. Säkerställ tillräckligt med uttag längs köksbänkarna.
- Smart Home: Vill du kunna styra belysning, värme och larm via mobilen? Meddela detta tidigt så att systemet kan integreras i elritningen.
- Utomhusmiljö: Glöm inte trädgården! Uttag för gräsklippare, julbelysning, motorvärmare eller laddbox till elbilen måste finnas med på ritningen.
- Nätverk och media: Även i trådlösa tider är dragna nätverkskablar (LAN) till TV och hemmakontor guld värt för en stabil uppkoppling.
- Framtidssäkerhet: Dra hellre ett extra rör (tomrör) i väggarna nu än att behöva göra det om tio år. Det är en otroligt billig försäkring för framtida behov.
Låt Bygglovstjänst hjälpa dig med din elritning
Att navigera i ett byggprojekt kan kännas överväldigande, men med rätt experthjälp blir resan både trygg och förutsägbar. Vi på Bygglovstjänst har lång erfarenhet av att ta fram fackmannamässiga, tydliga och detaljerade elritningar för alla typer av byggnader.
Vi arbetar tätt tillsammans med dig för att förstå dina behov, oavsett om du planerar en nybyggnation, tillbyggnad eller en omfattande renovering. Vi ser till att dina elektriska installationer planeras enligt konstens alla regler, minimerar risken för kostsamma misstag och ser till att underlaget håller högsta klass för din bygglovsansökan och inför dina entreprenörer.
Kontakta oss idag för att få hjälp med att skapa en elritning som ger dig kontroll, transparens och sinnesro genom hela byggprocessen. Undvik fallgroparna och låt oss lägga grunden för ett säkert och fantastiskt hem!
Vanliga frågor om elritning
Hur lång tid tar det att skapa en elritning?
Ritningen kan skapas på allt mellan 1 och 14 arbetsdagar beroende på projektets storlek. En enkel elritning för en lägenhet tar normalt 1–2 dagar, medan en komplett elritning villa för ett nybyggnationsprojekt kan ta en vecka eller mer. Det är rekommenderat att påbörja arbetet med elritningen så tidigt som möjligt i processen för att inte fördröja övriga arbeten.
Kan jag göra min egen elritning?
Tekniskt sett kan du rita elritning själv med hjälp av CAD-program eller specialiserade elritningsprogram. Att rita elritning på egen hand kräver dock goda kunskaper om elstandarden SS 4364000 och gällande symboler. För att elritningen ska godkännas av kommunen och användas som underlag för elektriker krävs att den är korrekt och fullständig. De flesta väljer att anlita en professionell elektriker eller eltekniker för att säkerställa att resultatet håller rätt standard.
Kan jag ändra en elritning efter att den har skapats?
Ja, elritningar kan och bör uppdateras om förutsättningarna förändras. Det är viktigt att alltid arbeta med den senaste versionen av ritningen och att alla ändringar dokumenteras noggrant. Om elritningen används som underlag för en bygglovsansökan behöver ändringar kommuniceras till kommunen för att undvika problem vid slutbesiktningen.
När krävs en elritning?
En elritning krävs i samband med nybyggnation, större ombyggnader och tillbyggnader – och i många fall som en del av bygglovsprocessen. Elritningar är också obligatoriska för att en elektriker ska kunna utföra och intyga installationsarbetet enligt gällande regler. Kontakta alltid din kommun i ett tidigt skede för att ta reda på exakt vilka handlingar som krävs för ditt specifika projekt.
















Fyll i formuläret för offertförfrågan!
Vi återkommer snart och erbjuder alltid gratis offerter och platsbesök!
Nya regler för bygglov förenklar för husägare
Den 1 december 2025 trädde den mest omfattande reformen av Plan- och bygglagen (PBL) på [...]
mar
Vad kostar ett bygglov? Avgifter för bygglov & anmälan
Funderar du på att förverkliga ditt drömprojekt men är osäker på den oundvikliga frågan: vad [...]
sep
Vi erbjuder bygglovsritningar till fast pris – För trygghet och kvalitet
När du planerar ett byggprojekt är bygglovsritningar avgörande. Men vad är det som påverkar priset [...]
aug
Bygglov för växthus – Allt du behöver veta innan du ansöker
Att bygga ett växthus är en dröm för många trädgårdsentusiaster. Det förlänger odlingssäsongen, skyddar känsliga [...]
maj
Bygga uterum: Så förvandlar du din befintliga altan
Vill du förvandla din befintliga altan eller terrass till ett mysigt uterum för att skydda [...]
nov
Bygglovsritningar exempel för nybyggnad och tillbyggnad
Bygglovsritningar är tekniska ritningar från ditt kommande byggprojekt ur olika perspektiv. När bygglov krävs är [...]
jul
Preskriptionstid för bygglov: Viktigt att veta
Att äga, köpa eller sälja en fastighet innebär ett stort juridiskt och ekonomiskt ansvar. För [...]
apr
Attefallshus Regler 2026: Hitta rätt regler för attefallshus
Har du koll på att du kan bygga en komplementbyggnad på din tomt utan att [...]
jun
Regeringen ger Boverket i uppdrag att utreda “Sverigehuset” bygglov för småhus
Att förverkliga drömmen om ett eget småhus kan ofta stöta på hinder, inte minst gällande [...]
jun