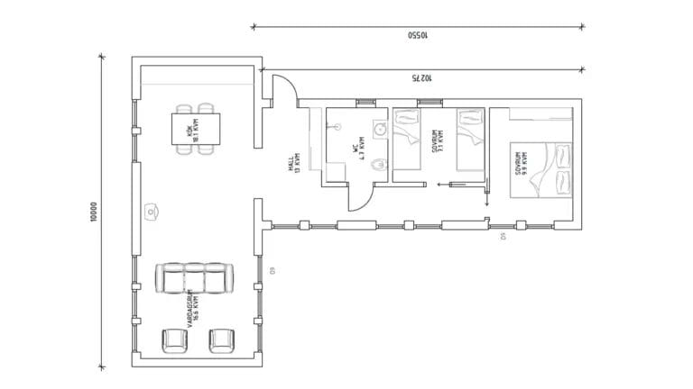
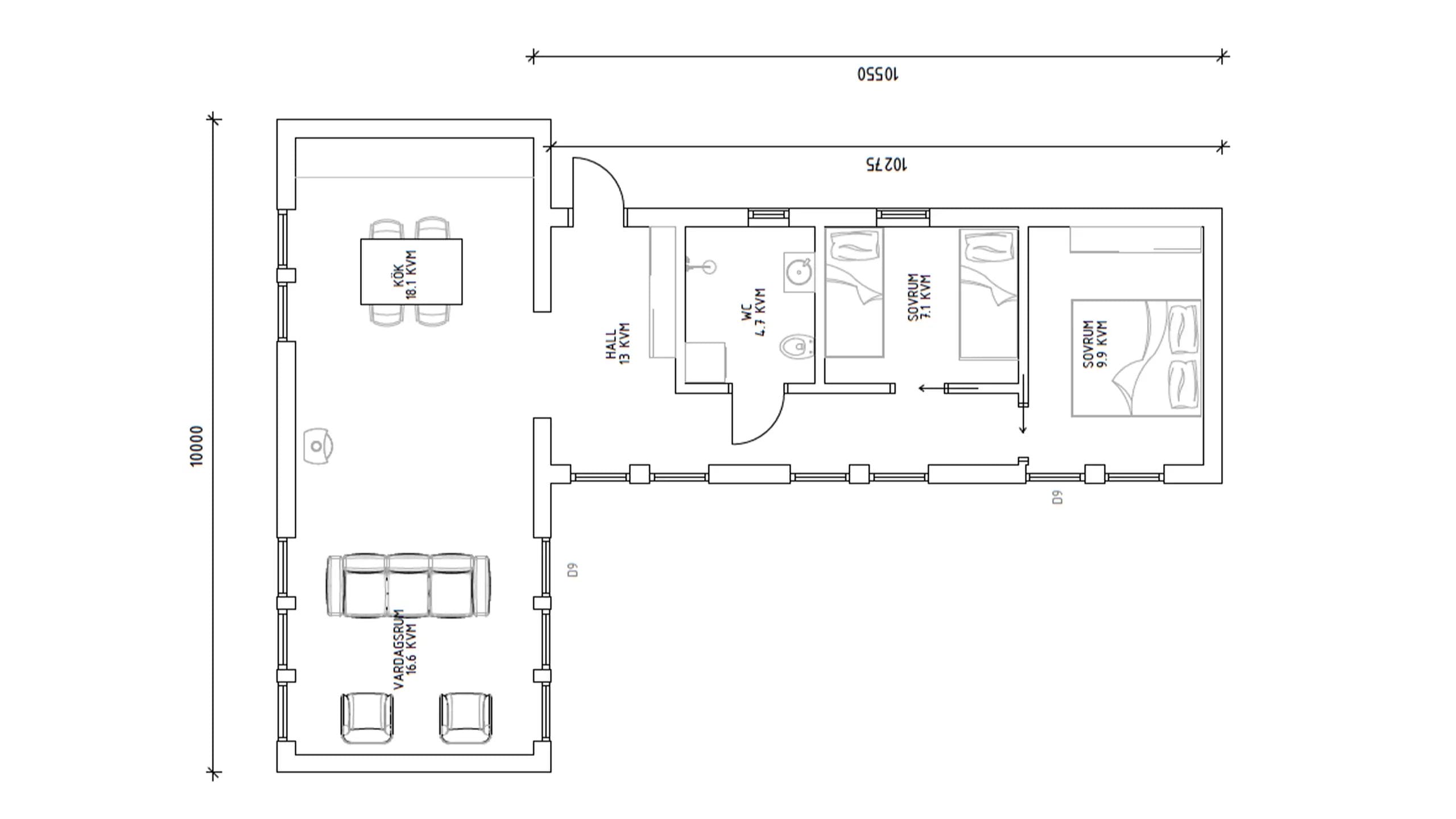
Fritidshus Gustav Modellen
Gustav är ett rymligt fritidshus på 79,1 kvm (BOA) med en modern och stilren design. Husets planlösning erbjuder två sovrum och ett rymligt vardagsrum som ansluter till köket, vilket skapar en öppen och luftig känsla. De stora fönstren ger ett fantastiskt ljusinsläpp och förstärker kontakten med naturen utanför. Med en takhöjd på 3,7 meter känns rummen extra rymliga. Huset är perfekt för den som söker en stilren men samtidigt funktionell fritidsbostad för både sommar- och vintervistelser















