Attefallshus Freja
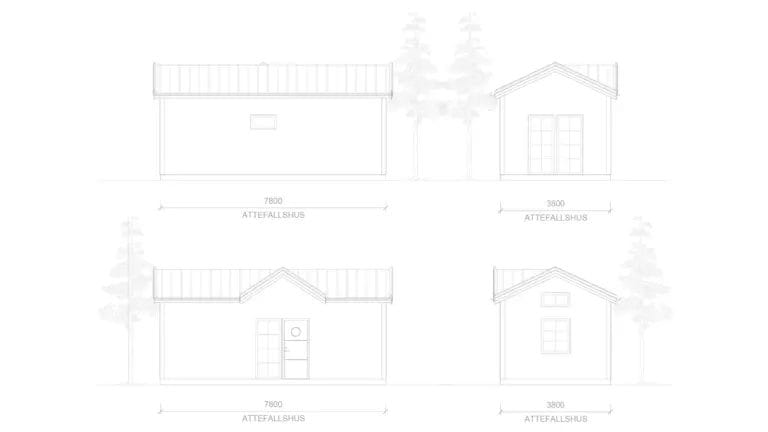
Attefallshuset Freja är en modern och flexibel bostad med en stilren design. Detta hus erbjuder en boarea på 23,46 kvm och ett loft på 11,5 kvm. Den stående träpanelen och takets plåt ger huset en både robust och modern känsla. Freja har en öppen planlösning med kök och allrum, där det är öppet upp till nock för att skapa en luftig atmosfär. Sovrummet på bottenvåningen är rymligt nog för en dubbelsäng, och loftet kan användas som en extra sovplats eller förvaring. Detta hus passar utmärkt som fritidsboende, gästhus eller kontor.



















