Fritidshus Erik
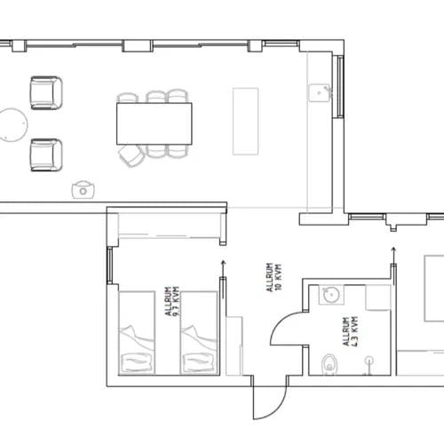
Erik Erik är en kompakt och funktionell modell på 71,7 kvm (BOA), designad med fokus på enkelhet och komfort. Den öppna planlösningen binder samman kök och vardagsrum, vilket skapar en trevlig social yta. Med två sovrum är det ett idealiskt fritidshus för en mindre familj eller par som vill ha ett stilfullt och praktiskt hem. Den maximala nockhöjden på 3,4 meter och de stora fönsterpartierna bidrar till att förstärka ljusinsläppet och ge en rymlig känsla
















