Fritidshus Nils
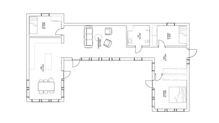
Nils är ett charmigt fritidshus på 79,1 kvm (BOA), perfekt för den som uppskattar traditionell arkitektur i kombination med moderna inslag. Den genomtänkta planlösningen inkluderar tre sovrum, ett allrum, och ett öppet kök/vardagsrum. Den höga takhöjden på 3,4 meter ger en luftig atmosfär, medan de strategiskt placerade fönstren maximerar naturligt ljus i alla rum. Nils erbjuder en balans mellan estetik och funktionalitet, och är anpassad för att passa både kustnära och lantliga miljöer.
















