Fritidshus Lars
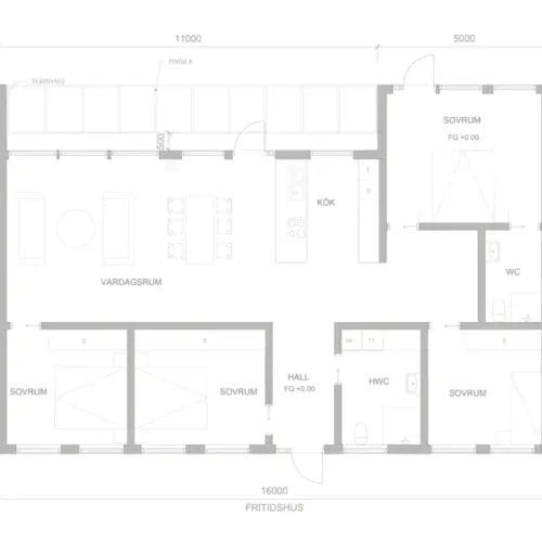
Med en imponerande boyta på 136,9 kvm (BOA) är modellen Lars den största i serien. Huset erbjuder fyra sovrum och ett stort vardagsrum med kök i öppen planlösning. Stora fönsterpartier och en takhöjd på 3,8 meter skapar en fantastisk rymd och ljusinsläpp. Lars är perfekt för stora familjer eller för den som söker extra komfort i sitt fritidsboende.
















