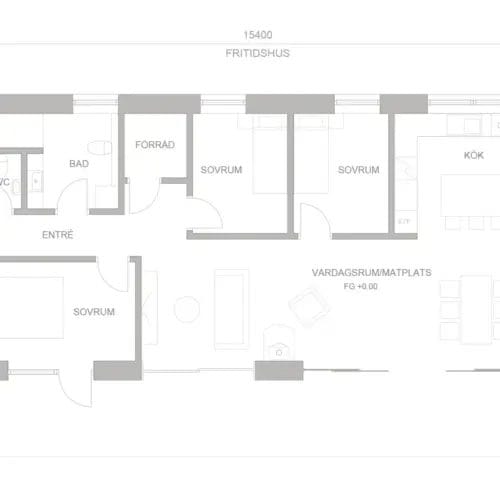
Fritidshus Edvard
Edvard är ett rymligt fritidshus på 93,6 kvm (BOA) med en modern och funktionell planlösning. Huset erbjuder tre sovrum och ett stort vardagsrum med kök i öppen planlösning. Med en takhöjd på 4,7 meter och en nockhöjd som ger en storslagen känsla, passar detta hus utmärkt för både familjer och för den som söker en bekväm semesterbostad.


















